Thông tin van Yuci Yuken MR-10
Đặc điểm van Yuci Yuken MR-10
Van giảm áp modular MR-10 series là một thiết bị chỉnh giảm áp tiêu biểu của Yuci Yuken. Chức năng của MR-10 series đó là chỉnh giảm áp suất sao cho áp đầu ra luôn nhỏ hơn áp suất đầu vào.
Thông tin kỹ thuật của van giảm áp modular MR-10 series:
+ Tên thiết bị: Van giảm áp modular Yuci Yuken MR-10 series
+ Hãng sản xuất: Yuci Yuken
+ Lưu chất: Dầu, nhớt, chất lỏng thủy lực
+ Kiểu van: Van giảm áp modular
+ Lưu lượng tối đa: Đối với van MR-10 –A 30/3090 thì lưu lượng là 250 L/min, đối với van MR-10 –B 30/3090, MR-10-C 30/3090, MR-10 –H 30/3090 thì lưu lượng tối đa có thể đạt được là 800 L/min.
+ Áp suất vận hành tối đa: 25MPA
+ Các loại van: MR-10 –A 30/3090, MR-10 –B 30/3090, MR-10-C 30/3090, MR-10 –H 30/3090.
Van giảm áp modular MR-10 series cùng với các loại van thủy lực khác của hãng Yuci Yuken trở thành phần không thể thiếu của các máy ép nhựa, máy dập kim loại, máy đột lỗ, máy ép phế liệu… sử dụng trong hệ thống xử lý rác thải, cơ khí chế tạo, lắp ráp ô tô…
Các loại van Yuci Yuken MR-10
Quý khách hàng có thể tra và tìm mã van giảm áp modular Yuci Yuken MR-10 series một cách thuận lợi trong bảng list mà chúng tôi đã tổng hợp và liệt kê dưới đây:
MRP-10*
MRA-10*
MRB-10*
Tài liệu kỹ thuật van giảm áp modular Yuci Yuken MR-10
Dưới đây là tài liệu kỹ thuật quan trọng về van giảm áp modular Yuci Yuken MR-10 series mà các khách hàng không thể bỏ qua khi tìm hiểu, lựa chọn thiết bị này để lắp mới hay thay thế. Khách hàng có thể tra mã van cũng như tham khảo kỹ về thông số kỹ thuật, thông tin lưu lượng, bảng vẽ cụ thể của nó:
Thông số kỹ thuật van giảm áp modular Yuci Yuken MR-10

Sơ đồ chọn mã van giảm áp modular Yuci Yuken MR-10

Sơ đồ hoạt động van giảm áp modular Yuci Yuken MR-10

Bảng thông số lưu lượng van giảm áp modular Yuci Yuken MR-10

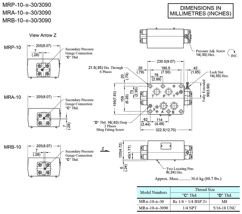
Bản vẽ kích thước van giảm áp modular Yuci Yuken MR-10

