Thông tin van Yuci Yuken BST/G-03/06/10
Đặc điểm van Yuci Yuken BST/G-03/06/10
Nhờ có van chỉnh áp điện Yuci Yuken BST/G-03/06/10 series mà hệ thống được an toàn, không bị phá vỡ khi áp suất tăng cao, đảm bảo hiệu quả vận hành máy móc.
Thông tin kỹ thuật của van chỉnh áp điện BST/G-03/06/10 series:
+ Tên thiết bị: Van chỉnh áp điện Yuci Yuken BST/G-03/06/10 series
+ Hãng sản xuất: Yuci Yuken
+ Lưu chất: Dầu, nhớt, chất lỏng thủy lực
+ Kiểu van: Van chỉnh áp điện
+ Trọng lượng: Dao động từ 6.5 kg- 11.7 kg
+ Lưu lượng: Với van BST -03, BSG -03 thì lưu lượng max là 100 L/min, đối với BST -06, BSG -06 là 200 L/min còn van BST -10, BSG -10 có thể đạt 400 L/min.
+ Áp suất vận hành tối đa: 25 MPa hay 3630 PSI
+ Các loại van: BST -03, BSG -03, BST -06, BSG -06, BST -10, BSG -10
Van chỉnh áp BST/G-03/06/10 series mang lại rất nhiều lợi ích khi được sử dụng nên khách hàng lắp đặt trong hầu hết các hệ thống thủy lực, máy móc hoặc các bộ nguồn, hệ thống cấp dầu… trong nhà máy nhựa, sản xuất xi măng, luyện kim, cán tôn, cơ khí chế tạo…
Các loại van Yuci Yuken BST/G-03/06/10
Tất cả các dòng van chỉnh áp điện Yuci Yuken BST/G-03/06/10 series đã được chúng tôi liệt kê một cách đầy đủ, chi tiết dưới đây:
BST-03*
BST-06*
BST-10*
BSG-03*
BSG-06*
BSG-10*
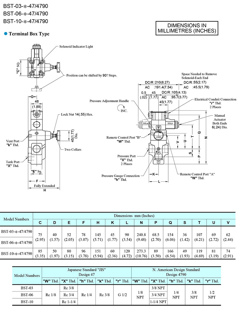
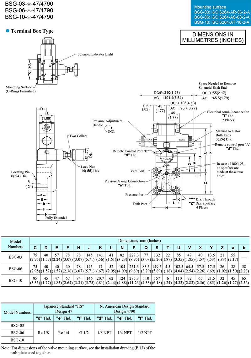
Tài liệu kỹ thuật van chỉnh áp điện Yuci Yuken BST/G-03/06/10
Dưới đây là tài liệu kỹ thuật quan trọng về van chỉnh áp điện Yuci Yuken BST/G-03/06/10 series mà các khách hàng không thể bỏ qua khi tìm hiểu, lựa chọn thiết bị này để lắp mới hay thay thế. Khách hàng có thể tra mã van cũng như tham khảo kỹ về thông số kỹ thuật, thông tin lưu lượng, bảng vẽ cụ thể của nó:
Thông số kỹ thuật van chỉnh áp điện Yuci Yuken BST/G-03/06/10

Sơ đồ chọn mã van chỉnh áp điện Yuci Yuken BST/G-03/06/10

Sơ đồ hoạt động van chỉnh áp điện Yuci Yuken BST/G-03/06/10

Bản vẽ kích thước van chỉnh áp điện Yuci Yuken BST/G-03/06/10




